Деформационный профиль Dewmark Wall AV 22 – закладное решение для защиты стен от деформаций с увеличенной видимой шириной
Профиль обеспечивает компенсацию нагрузок при ширине шва от 50 до 300 мм, высоте профиля 45 мм, видимой ширине от 210 до 580 мм и доступен со вставками цветов 9005, 9035, 7037, 1015
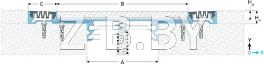
ОБОЗНАЧЕНИЯ Dewmark Wall AV 22:

A — номинальная ширина шва;
B — ширина внутренней части;
С — видимая часть;
Hm — монтажная высота;
Hd — глубина внутренней части;
Mx — горизонт. деформации;
My — деформации по оси Y.
ТЕХНИЧЕСКИЕ ДАННЫЕ Dewmark Wall AV 22
| Профиль | Размеры, мм | Деформации, мм | |||||
|---|---|---|---|---|---|---|---|
| A1 | B2 | C3 | Hd | Hm | Mx | My | |
| AV 22/50/18 | 50 | 130 | 40 / 50 / 80 / 100 | 12 | 18 | До 50 (+25/-25) | 20 (+10/-10) |
| AV 22/75/18 | 75 | 155 | 40 / 50 / 80 / 100 | 12 | 18 | До 80 (+50/-40) | 20 (+10/-10) |
| AV 22/100/18 | 100 | 180 | 40 / 50 / 80 / 100 | 12 | 18 | До 100 (+50/-50) | 20 (+10/-10) |
| AV 22/150/18 | 150 | 230 | 40 / 50 / 80 / 100 | 12 | 18 | До 150 (+75/-75) | 20 (+10/-10) |
| AV 22/200/18 | 200 | 280 | 40 / 50 / 80 / 100 | 12 | 18 | До 200 (+100/-100) | 20 (+10/-10) |
| AV 22/250/18 | 250 | 330 | 40 / 50 / 80 / 100 | 12 | 18 | До 250 (+125/-125) | 20 (+10/-10) |
| AV 22/300/18 | 300 | 380 | 40 / 50 / 80 / 100 | 12 | 18 | До 300 (+150/-150) | 20 (+10/-10) |
1 А - профиль может быть изготовлен на любую ширину шва от 50 мм (запрашивайте детали).
2 Ширина внутренней части может быть изменена по запросу, например для установки плитки определенной ширины без ее подреза.
3 Ширина зависит от типа применяемой вставки.
ТЕХНИЧЕСКИЕ ДАННЫЕ
НАПРАВЛЯЮЩАЯ
| Материал | Алюминий EN AW 6063 T66 |
|---|---|
| Прочность, МПа | σs = 250 |
| Допуски | ГОСТ 22233-2018 |
| Длина, м | 3,0 |
| Обработка | Монтажные отверстия |
| Покрытие | Без покрытия |
ГИБКАЯ ВСТАВКА
| Материал | ПВХ-П | ||||
|---|---|---|---|---|---|
| Устойчивость | -30...+100 °C, УФ+О₂ — устойчивость | ||||
| Длина, м | 20 метров в рулоне | ||||
| Цвет4 |
|
4 На заказ вставка может быть изготовлена в любой цвет RAL (запрашивайте детали).
5 На заказ профиль может производится со вставками разной геометрии
(см. "Нестандартные типы гибких вставок").
КОМПЛЕКТАЦИЯ ПРОФИЛЯ






